На главную септики
На главную
сепараторы
На главную Карта сайта Написать сообщение
Локальные системы очистки,
продажа сепараторов нефтепродуктов,
жиров и крахмалов.
О компании Каталог Прайс-лист Документы Статьи Выставки Контакты
 
 
Локальные системы очистки
для бытовых стоков
Cистема очистки сточных вод Family
размещение септика
принцип действия
оптимальный подбор септика
монтаж дренажа
бактерийный активатор
технические характеристики
Cептики с биофильтром FIL D'EAU
конструкция биофильтра
условия установки и монтажа
гарантия 10 лет
технические характеристики
Разные системы очистки стоков в зависимости от количества жителей
Канализационные насосные
станции
Сепараторы нефтепродуктов
(нефтеуловители)
Применение и подбор оборудования
Устройство нефтеуловителя
Условия установки и монтажа
Обслуживание нефтеуловителей
Сигнализация
Сепараторы жира и крахмала
(жироуловители)
Жироуловитель под мойку
Область применения оборудования
Определение величины сепаратора
Канализация
Погружной насос
Применяемые термины
Контакты
Главная    Каталог продукции  

Каталоги для скачивания:

Локальные очистные сооружения

Нефтеуловители

Локальное очистное оборудование JPR System

1.Септик Family + фильтрующий дренаж  
   
2. Септик + Family аэробиофильтр FIL d,Eau  
   

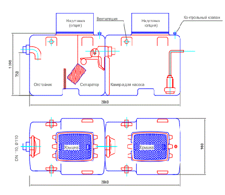
Нефтеуловители JPR System

    Обозначения:
  • S - Сепаратор
  • W - Нефтепродуктов
  • O – Отстойник
  • K – Коалисцентная вставка
  • B – Устройство Бай-Пасс
  • D – Увеличенный отстойник
  • P – Насосная камера 
SWOK   SWODK
SWOBK   SWOKP
KN  

Сепараторы жира и крахмала JPR System

 
сепаратор жира мини сепараторы жира для кухни  

 

 

 

 
 

изготовление сайтов визиток


© 2002–2008 «ВСЕСЛАВ» Все права защищены
Россия, г.Москва, Ленинградское шоссе, д.61,корп.1
Системы очистки Сепараторы жиров


   Rambler's Top100